Bridgewater
Bridgewater

4

2.5

3.300

2
starting at
$279,990- Extended Outdoor Living
- Open floor plan
- Optional Fireplace at Family Room
- Bonus room
- Hardwood Floors
- Tray ceilings

-
Master bedroom:
-
-
Hearth:
-
-
Family Room:
15.5x20.5
-
Dining:
13x12.5
-
Kitchen & Nook:
22x12.5
-
Study:
-
-
Sun room:
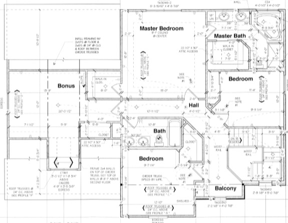
Second floor
-
Master bedroom:
15x15.5
-
Bedroom 2:
12x10
-
Bedroom 3:
10x11
-
Bedroom 4:
20x12
-
Study:
-
